[PLANO DE CASA] DE 137 M2
Para la construcción de una vivienda son esenciales los planos para un buen diseño y un buen acabado. El PLANO DE CASA DE 137 M2, es espectacular ya que es amplia pero confortante y sobre todo cumple las necesidades de quien lo habita. Como se muestra en la imagen es de un estilo moderno, al ingreso de la vivienda tiene un jardín pequeño. El plano de casa cabe en un lote de 137 m2, que cuenta con tres amplios dormitorios.
Al ingreso a la vivienda es por un hall pequeño, que lleva al lado derecho a la sala estar de la casa que se encuentra al lado del comedor, del comedor hay un acceso a la cocina que es bastante amplia y espacio para el usuario, de la cocina hay otro acceso al área de servicio que es la lavandería.
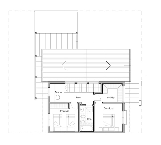
Los dormitorios de la casa son tres, en el ingreso al lado izquierdo está ubicado el primer dormitorio que es amplio, al lado está ubicado un baño y también la escalera. En el segundo nivel hay un pasillo pequeño donde está el estudio, continuando están las dos habitaciones que comparten un baño.
Mas información en: http://planosdecasas10.blogspot.com/
[PLANO DE CASA] DE 137 M2
Reviewed by Ysela T
on
9/19/2016
Rating:
Reviewed by Ysela T
on
9/19/2016
Rating:




No hay comentarios.: